The Story of The Ashram Main Building 185 pages 2008 Edition
English

ABOUT

Sri Aurobindo & The Mother stayed for 50+ years in a block of 4 houses known as the Ashram Main building at Pondicherry. The Samadhi is located here as well.

The Story of The Ashram Main Building

Raman Reddy
Raman Reddy

Sri Aurobindo and the Mother stayed for over half a century in a block of four houses that came to be known as the Ashram main building at Pondicherry. It was the centre of life in the Ashram when they were physically present and will remain so even in their physical absence. Hundreds of people go inside daily to breathe the serene atmosphere and come out spiritually charged. On special occasions, long queues are formed and visitors wait patiently to get a glimpse of their rooms. The building has become a means of contact with their subtle-physical presence. It is this reverence for the House of the Lord that has inspired this book on the Ashram main building.

The Story of The Ashram Main Building 185 pages 2008 Edition
English
 PDF   


First edition 2008



Rs 550

ISBN 978-81-7058-892-4

© Sri Aurobindo Ashram Trust 2008

Published by Sri Aurobindo Ashram Publication Department,

Pondicherry 605 002

Web http://www.sabda.in




PRINTED IN INDIA


Front cover painting by Jayantilal Parekh, 1939

Back cover painting by Krishnalal Bhatt, 1948


The research and Compiler's Note in the book have been prepared by Raman Reddy. The drawings are by Ramakant Navelkar (Drawing Office). Some of the photographs are by Kiran Kakkad and some by Raju. The page setting and touching up of the old photographs has been done by Debabroto Roy under the supervision of Robi Ganguly. Finally Petra has helped in the graphics.

Preface

Sri Aurobindo and the Mother stayed for over half a century in a block of four houses that came to be known as the Ashram main building at Pondicherry. It was the centre of life in the Ashram when they were physically present and will remain so even in their physical absence. Hundreds of people go inside daily to breathe the serene atmosphere and come out spiritually charged. On special occasions, long queues are formed and visitors wait patiently to get a glimpse of their rooms. The building has become a means of contact with their subtle-physical presence. It is this reverence for the House of the Lord that has inspired this book on the Ashram main building.

There were no grand beginnings, no great plans of action and not much money either when Sri Aurobindo and the Mother moved from 41 Rue Francois Martin to 9 Rue de la Marine on 25 October 1922. The Mother kept an account of the sundry expenses incurred on that day. The rent was fixed at a hundred rupees a month and the owner charged them Rs 20 for the last six days of October. The property later came to be known as the Library House (because of a library on its ground floor) - this is the house that you first see as you enter the main gate of the Ashram main building. After a few years, two adjacent houses -7 Rue de la Marine and 8 Rue Saint Gilles - were taken on rent for the disciples. These came to be known respectively as the Rosary House (because of the rose-pots kept on its terrace) and the Secretariat where Pavitra, a French engineer and secretary to the Mother, resided on the first floor. Finally, the house at 28 Rue Francois Martin, later known as the Meditation House because of the two halls used for collective meditation, was rented in December 1926 and almost immediately purchased. Sri Aurobindo and the Mother moved to the Meditation House on 7 February 1927 after carrying out minimum repairs and before paying the second instalment due in July of the same year.

At first, the four houses were internally connected through small doors and passages. For example, an extra door was added to Sri Aurobindo's bathroom connecting it to the terrace of the Secretariat, and Sri Aurobindo's lunch was carried daily through this door at noon by the Mother and Pavitra. Similarly, a short link-staircase was built for the Mother to access the Library House from the courtyard of the Secretariat, so that she could meet the sadhaks in the Stores after her afternoon drives to the countryside. Late in the evening, after distri-buting soup to the disciples, she came back to the Meditation House through doorways cut in the Rosary House compound wall, one of which looked like a small tunnel, and Dara, a Muslim disciple, preceded the Mother with a lantern in his hand. It is this blend of the material and the spiritual that makes early Ashram history so fascinating a study.

The decision to rebuild the Secretariat came after a few unsuccessful attempts to repair the dilapidated old building. Both the Secretariat and the Library House were purchased in March-April 1929. Construction work began around August of the same year and, by April 1932, the "New Secretariat" was ready. It provided the Mother with much needed additional space to work and rest - the Green Room and Salon. Pavitra too had an office and room on the first floor with a balcony attached to it, which the Mother later used for the Balcony Darshan. A workshop with a car-repair section and a garage were built on the ground floor. Work proceeded in the backyard of the Library House. The Prosperity block and the ground floor rooms on the west (which now form the Cold Storage wing) were built by 1935, integrating the new structures with the old buildings. The Ashram main building was now transformed into one large, well-connected mansion with several spacious courtyards. There was no further major construction except for the building of additional rooms on existing terraces, including the Mother's own rooms on the second floor of the Meditation House.

This early phase of construction gave a certain administrative unity to the Ashram, and the main building literally became a secretariat of the Mother. Many of the disciples who stayed in it served as the principal secretaries of the Mother and played an important role in the small but well-organised life of the Ashram. Nolini, Amrita and Purani resided on the ground floor of the Meditation House. Chandulal and Dyuman, heads of the Building Service and Dining Room respectively, moved to their new rooms on the ground floor of the New Secretariat. Purushottam, the disciple in charge of the Prosperity department, went to his newly-built block, and Anilbaran, Champaklal and Rajangam, the doctor, continued to stay in the Library House. The other Ashram services within the same premises were the Building Service, the Dispensary, the Dining Room and Kitchen (up to January 1934), the Accounts Office, the Reading Room and Library, and Pavitra's workshop for repairing cars (Atelier), which also did electrical and plumbing works. These departments were of course in their early formative stages and did not require much space. Most of them were later shifted to separate buildings when the Ashram expanded in the forties and fifties.

The most important part of life at the Ashram was the daily contact of the disciples with the Mother in the Ashram main building. Daily group meditations were held by the Mother in the two halls upstairs and downstairs (during different periods) of the Meditation House. For a short while, the room later occupied by Bula (head of the Electricity Service) was the venue of her morning pranam. Soup was distributed by her in the evening to the disciples in the present Reception Room. The Stores on the first floor of the Library House witnessed lighter moments when she conducted lotteries and simple games of skill for the first generation of sadhaks. Around the same time, she gave symbolic names to the rooms in the Ashram main building according to their functions or the sadhaks who occupied them. For example, Nolini's and Amrita's rooms were named respectively "Pure Mind" and "Vital Immortality". Sri Aurobindo's room was named "Supreme Manifestation upon Earth". The Darshan Room was "Divine Consciousness" and the soup hall "Divine Communion". Amusingly, the room where newspapers were kept was called "Falsehood".

Finally, it is interesting to note the connection between Sri Aurobindo and the Mother's sadhana and the history of the Ashram main building. Sri Aurobindo wrote to Rajani Palit in 1936, "The change to this house [Meditation House from the Library House] marked the change in the sadhana on the vital to the sadhana on the physical level." The change of Sri Aurobindo and the Mother's residence coincided with their rejection of the Overmind creation after the Siddhi Day. A "brilliant creation" with "marvellous experiences" and "all kinds of manifestations which are considered miraculous" had become possible after the descent of the Overmind on 24 November 1926. But Sri Aurobindo renounced it in order to prepare the physical consciousness for the descent of the Supermind. Nolini Kanta Gupta writes how this drastically affected the sadhana of the disciples. When the Mother dissolved this "brilliant creation", "the Gods withdrew" and the sadhaks "came down with a thud upon earth". They had to "come to the lower levels and work for the purification there, in order to raise them beyond themselves by the infusion of the higher consciousness". It is this descent of the sadhana to the physical level that Sri Aurobindo refers to in his letter to Rajani Palit with regard to the change of their residence from the Library House to the Meditation House on 7 February 1927.

Similarly, the construction of additional facilities for the Mother on the second floor of the Meditation House began around the same time she went through a critical phase of her sadhana and life. In March-April 1962, the Mother suffered a series of heart attacks that led to a perilous condition in which her "body was cut off from the vital and the mind and left to its own means". She described it as "a sort of death", and she "could have died, had the Lord willed it". But then "the cells woke up to a new receptivity and opened directly to the divine Influence" and "there was the direct contact" of the body with the supramental power without the intermediacy of the vital and mind. On 13 April 1962, this state culminated in her experience of the Supreme Love manifesting through "big pulsations", each pulsation "bringing the world further in its manifestation". She recounted this experience time and again in later conversations as a major landmark in her sadhana. It was during this time that a bathroom was immediately constructed on the second floor, so that she did not have to come down to the first floor to take her bath. Until then, her room on the second floor (which we now call the Mother's room and visit on Darshan days) had no attached bath! Soon, another room for her organ (later known as the Music Room or her Reception Room) was added to her second floor apartment, with a balcony facing east. The Mother's daily routine considerably changed after the completion of her second floor apartment in 1962. When she recovered from her illness, she did not go out anymore to attend special functions in the School or Playground or other departments of the Ashram. The daily early morning Balcony Darshan from the first floor balcony overlooking Rue Saint Gilles was never resumed. The venue of the general Darshan on the four Darshan days was shifted from the Meditation Hall to the new balcony facing east and overlooking Rue Francois Martin. Ashramites, school children and visitors went upstairs to meet her individually as she restricted herself to the second floor apartment for the last eleven years of her yoga of physical transformation.

The Ashram main building thus acquires a far greater significance than the mere brick and mortar structure that it outwardly is. We have therefore noted down in this book every structural change, major and minor, since the time Sri Aurobindo and the Mother moved in. Detailed drawings, explanatory graphics and old photographs have been interspersed with textual documents and notes to provide a picture of the building as it was at various stages, especially during the early period. The book leans preponderantly on the physical aspect, the building itself, and we could barely touch the other interesting aspects of Ashram history, such as the collective activities of the Mother or the growth of the departments under her guidance. We have only set the stage, or rather, built the external foundation of the history of Sri Aurobindo Ashram. It is now for others to delve deeper and tell us the rest of the story.

Editor



Note on captions used in this book

The captions used in this book to describe old photographs and drawings do not sometimes relate to the actual date of the illustrations. For example, "M.P. Pandit's office" has been indicated in a photograph dated 1922-1929 on page 43, even though he had not come to the Ashram during that period. Two reasons have led to the use of these anachronistic labels. One, the sheer convenience of identifying that part of the Ashram building with what most Ashramites and regular visitors are familiar with in the present year of publication, which is 2008. Two, very little is known about that room except that it was once occupied by Doraiswamy Iyer. At the same time, I have avoided mentioning the present status as far as possible, unless it has sufficient historical association. With the exception of such cases, the captions correspond in time to the date of the illustration. Wherever they do not, the dates to which the captions actually correspond have been given in parentheses. Taking the example above, the room occupied by M.P. Pandit in the photograph on page 43 dated 1922-1929 has been captioned "M.P. Pandit's office (1993)" because he last occupied it in 1993. However, the captions marked by the present year 2008 have to be taken in the sense of "as last observed in 2008" rather than until the end of that year.



The Four Houses

The Ashram Main Building

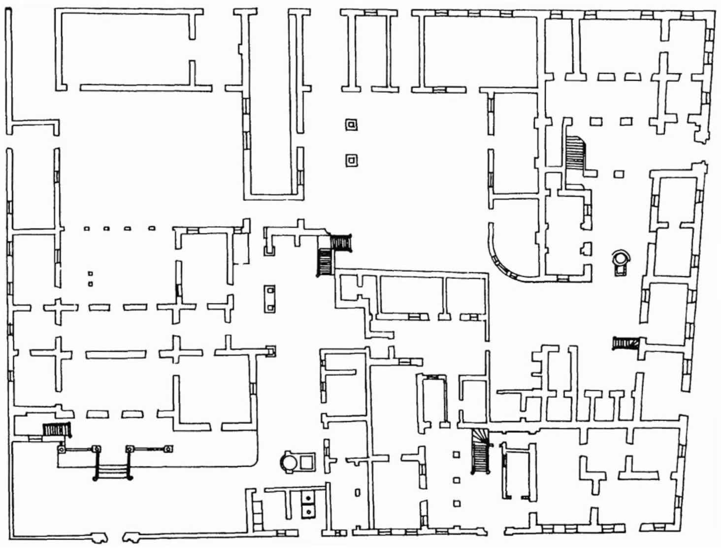
By "Ashram" is meant the building in which the Mother and Sri Aurobindo lived. This building consisted of four small and big houses. They were at first separate; when the Ashram was formed they were one by one bought and, after they had been broken, repaired, their parts joined here and there or doors made, they were welded into one large building. These houses occupying the four corners in a rectangular fashion were constituted into one whole structure, which we call the Ashram. More correctly, it is the main building of the Ashram.

When one enters here through the main gate, the two-storey building that first catches the eye, was the origin of what we call the Sri Aurobindo Ashram. In 1922 Sri Aurobindo and the Mother came to this house with some disciples. The Mother founded the Ashram while living in this house. Sri Aurobindo used to live on the first floor in the south-east part. On 24th November 1926, he attained the Realisation known as the Descent of the Overmind and, leaving the entire charge to the Mother, he retired from that day into seclusion "obviously to work things out" as he wrote to Nirodbaran.

Sahana Devi 1

Page 2

The Story of The Ashram Main Building - 0012-1.jpg

Page 3

The Ashram main building measures approximately 60 metres long from east to west, and 45 metres wide from north to south with many open courtyards within it. The main entrance is from the road to the south, Rue de la Marine (School side). To the west is Rue Manakula sVinayagar Koil, earlier called Rue d'Orléans (Atelier side). To the north is Rue Saint Gilles (Balcony side). To the east is Rue François Martin (Dispensary side). Although it is now difficult to believe, there were originally four separate houses in this block. Compound walls separated them from each other. Sri Aurobindo and the Mother first took the four houses on rent and later purchased them one after another. To permit internal access from one house to another, the inner compound walls and small outhouses were demolished. The main courtyard of the Ashram as it is at present became possible only after demolishing an entire house on the north side called the Secretariat (also called Pavitra's old building).

Ramakant Navelkar 2

Page 4



The four houses that constitute the Ashram Main Building are the Library House, Rosary House, Meditation House and the Secretariat. The main entrance of the Ashram building on Rue de la Marine is actually from the main gate of the Library House, which extends all the way up to Rue Saint Gilles to the north. The house got its name from the library that was previously there in the present Ashram Reading Room. The main gate of the Rosary House also opens on Rue de la Marine and faces the north gate of the Ashram School. The house was named after the roses that were grown on its terraces in the early days. The main gate of the Meditation House opens on Rue Fran>çois Martin to the east and is opposite the Ashram Dispensary. This is the house where Sri Aurobindo and the Mother lived from 1927 onwards. The name seems to have been derived from the two Meditation Halls in this house (one upstairs and the other downstairs), where the Mother held collective meditations for the sadhaks of the Ashram between 1927 and 1938. The big gate of the garage where the Mother's car is kept and the small door east of it opening on Rue Saint Gilles are both within the Secretariat. The main gate of the original house before it was entirely demolished and rebuilt, stood a few metres further to the east of the above-mentioned door. The four houses were so well integrated into a single interconnected structure that it is difficult now to distinguish them. However, the demarcations can be noticed with a little careful observation of the design and level of windows and cornices.

Editor's Note

Page 5

A great change was impending all unknown to us. The first seed of the future Ashram was going to be sown. One day I casually heard that a fine house was to be had in Rue de la Marine for rent situated very near our own. It belonged to a Mahomedan official of the French Govt and at that time it was tenanted by a mistress of a brother of a certain Raja in Madras Presidency. The landlord wanted to get rid of her. I casually consulted Sri Aurobindo about taking the house on rent.... Sri Aurobindo took me apart a day or two later and told me that this new house must be taken soon as it meant much to our Yoga. They had seen that the new house was very auspicious and it was destined to play a great part in our spiritual activities in future.

I went to the owner and he demanded Rs. 100 as rent - an unusually big sum in Pondicherry. Sri Aurobindo said money did not count as it was essential that we had the house soon. So a suit of ejection was started and it took three to four months to get the house vacant for our inspection.

Circa 18 May 1922

Barin Ghose 3

Sri Aurobindo paid Rs. 300 on 18 May 1922 as advance to Abdoul Aziz Khan, the previous owner of the Library House, on the condition that a list often repairs would be carried out to the house. The monthly rent was fixed at Rs 100, which was very high for Pondicherry in those days. "Three to four months" elapsed before the old tenant could be ejected and the necessary repairs done. Sixty more rupees were paid for the installation of a new water pipe, after which Abdoul Aziz Khan finally informed Sri Aurobindo that he could "occupy the building on Wednesday next, 25 October 1922". The first rental receipt of Rs. 20 for the last six days of October 1922 confirms that Sri Aurobindo and the Mother did move in on that day.

Editor's Note

Page 6

Note from the landlord to Sri Aurobindo

Monsieur Aurobindo Ghose

Pondichéry, le 22 Octobre 1922

Monsieur,

Comme il reste encore quelques petites réparations à faire dans la maison j'ai l'honneur de vous faire connaltre que vous pouvez prendre possession de l'immeuble le mercredi prochain, 25 Octobre 1922.

Veuillez agreer, Monsieur, l'hommage de mes sentiments respectueux.

Abdoul Aziz Khan 4


Earliest Rental Receipt

Reçu de M. Aurobindo Ghose la somme de vingt (20) roupies, loyer échu du 25 au dernier octobre 1922, soit pour 6 jours.

Pondichéry, le 16 Novembre 1922

Abdoul Aziz Khan

English Translation

Mr. Aurobindo Ghose

Pondicherry, the 22nd of October 1922

Sir,

As there are still a few minor repairs to be done in the house, I have the honour of informing you that you can occupy the building on Wednesday next, 25 October 1922.

Sir, please accept the homage of my respectful sentiments.

Abdoul Aziz Khan 4



Received from Mr. Aurobindo Ghose the sum of rupees twenty (20) towards rent for six days from the 25th to the end of October 1922.

Pondicherry, 16 November 1922

Abdoul Aziz Khan

Page 7

The Library House

The Story of The Ashram Main Building - 0017-1.jpg

View from south (1922-1929)

Page 8

The Library House

View from south (2007)


Page 9

Description of the Library House

It had a big gate with a canopy of creepers and an imposing and attractive frontage. On entering, first came a small garden abutting a verandah; on one side of the verandah was a door leading to the back of the house and, on the other side, a staircase going up to the verandah on the first-floor. At the entrance of this verandah were Datta's two small rooms. Then came the Mother's two rooms along the entire length of the verandah. On the south-east corner was Sri Aurobindo's room. On the north-east corner were the bathroom and a staircase for coming down. This was the layout of the first floor of the Library House.

In the room just below Sri Aurobindo's room, lived Amrita on the ground floor - it has now become the Library. On the west of it was Nolini's room facing the gate; later the Mother used to distribute here vegetable soup as 'Prasad' at night. Next to it was a narrow passage going towards the inner garden on the north where a wooden staircase led to Datta's two rooms on the first floor. Under this staircase, adjoining the building and yet separate, was my room. In this garden, I had planted twenty to twenty-five banana and papaya trees and there used to be sometimes so many papayas that we used to get thirty to forty of them daily for a month.

Barin Ghose 6

The Mother's Account of Expenses for moving to the Library House 7

Rupees

Annas

for the garden

3

electricity

150

for the well’s covers

6

12

blinds (verandah)

13

basket

1

4

carpenter

2

2

tubs (mending)

0

14

locksmith

1

12

tar

0

4

coolies

14

6

mat

1

8

carpenter (tables)

6

8

ropes

1

4

Amrita’s bill

13

4

electricity

20

partitions and shelf

4

8

blinds

5

electricity (repair)

5

6

250

12

water pipe

60

310

12

Page 10

The Library House

The Story of The Ashram Main Building - 0020-1.jpg

View from south-west (1975)

Page 11

The Rosary House

7 Rue de la Marine

Rental Receipt for July 1925

Reçu de Monsieur Barindra Kumar Ghose la somme de trente roupies loyer de ma maison située rue de la Marine No. 7.

Pondichéry, le 5 Août 1925

Carounamballe Françis


Translation

Received from Mr. Barindra Kumar Ghose the sum of thirty rupees towards the rent of my house located at No 7, Marine Street.

Pondicherry, 5 August 1925

Carounamballe Françis



The earliest rental receipt for the Rosary House is dated 5 August 1925. The premises must have been occupied in the previous month, July 1925. The Rosary House, named after the rose pots kept on its terraces, is also known as the "Cartonnerie" from the cardboard boxes that were being made there by Harikant Patel in the mid thirties. The house was eventually purchased in December 1937, long after the other three houses comprising the main Ashram building had been bought. One of its early occupants was Pavitra, who came to Pondicherry in December 1925 and spent "a little over one year" in the room south of what became later Pujalal's room. The same room, symbolically named "Entire Consecration" by the Mother, was occupied by Dyuman from 1927 to June 1932, after which it became the ladies dining room for a short while. Around the same time, Dara and Rene stayed on the ground floor and Kanai Ganguly on the first floor, of the east wing of the house.

Editor's Note

Page 12

The Rosary House

The Story of The Ashram Main Building - 0022-1.jpg

In the foreground is the Rosary House with its main gate facing south. On the left is the Library House. On the right is the Meditation House in a lighter shade of lime wash.

View from south-east (1922-1929)

Page 13

The Rosary House

The Story of The Ashram Main Building - 0023-1.jpg

On the right is the Rosary House. On the left is the Library House with its long chimney. Top centre is the Meditation House. Top left is the Old Secretariat.

View from south-west (1922-1929)

Page 14

The Rosary House

Note the structures on the terraces which are not there in the early photographs

View from south (2006)

Page 15

The Secretariat

8 Rue Saint Gilles

Rented from 4 May 1926

The Secretariat was rented from 4 May 1926 for Rs. 15 a month with an advance of Rs. 45. The house was already in a dilapidated state when Pavitra, the Mother's secretary, occupied it in 1926. It was entirely demolished and rebuilt after it was purchased in 1929. The terms "Old Secretariat" and "New Secretariat" have been used in this book to refer to the old and new buildings of the same property.

There is no photograph of the Old Secretariat which shows the full building as it was except from a distance or only in parts. The best view that we have of it is in the photograph on the next page. For a full view, see the reconstructed drawing of the Old Secretariat on pages 32-35.

Editor's Note

Page 16

The Secretariat and the Meditation House

View from south (1926-1929)

The Story of The Ashram Main Building - 0026-1.jpg

Page 17

The Old Secretariat

The Story of The Ashram Main Building - 0027-1.jpg

The Old Secretariat seen between the Meditation House (on the left) and the newly built Balcony block (in the centre).
The Mother's car is parked in front of the main door of the Old Secretariat. The figure seen on the terrace is most likely the Mother.

Circa October 1930, View from north-west (Rue Saint Gilles)

Page 18

The New Secretariat The Story of The Ashram Main Building - 0028-1.jpg

The motorcycle parked on the road is in front of the door of the New Secretariat (not to be confused with the big garage door under the balcony). The main door of the Old Secretariat was farther to the east.

2001, View from north-west (Rue Saint Gilles)

Page 19

The Meditation House

28 Rue François Martin

The Mother's Inspection of the Meditation House

Soon after coming back from Calcutta I heard that the house adjoining ours was vacant. I don't know what impelled me to go and see it. I casually mentioned it to Mother Mirra. She wanted to see it too. We did not know at the time that this house would be Sri Aurobindo's abode and the very centre of the Ashram buildings. Mother might have felt something of the kind but she did not give us any inkling until I actually took her there.

A Bengali young man from Hyderabad (the Nizam's capital) was in correspondence with me at this time on Yoga and kindred matters. He mentioned one Ibrahim in his letters, a young Mahomedan idealist, who wanted to come to Pondicherry and take up Yoga. Ibrahim subsequently wrote to me and actually came for a short visit. He was stout, fair, very quiet and unobtrusive, with large lustrous eyes and a great hankering for things spiritual. He went away promising to come later, renouncing the world for good and sit down at the feet of the great Master to learn Yoga.

As soon as the key of the new house was procured, the Mother went to inspect it. So far as I remember, it was a sweet and clear morning with white fleecy clouds suspended in the blue sky. Ibrahim had returned by this time. He also accompanied us. As Mother Mirra went up the grand staircase of the new house, she fell into a trance. Gently she entered the hall, looked about in her peculiar dreamy and absorbed way. Turning to me with her luminous mystic smile, she said, "I see untold wealth here, Dara has brought it with him." She moved about the house in a tense indrawn state.

Ibrahim was later renamed Dara (after the eldest brother of Emperor Aurangzeb) by the Master. She at once began negotiating for the purchase of the house. The owner wanted as much as Rupees 14000, an exorbitant sum for it. Mother said money wasn't of any consequence as this house meant so much for the future of the colony. So it was purchased and repaired for Sri Aurobindo to live in. Gradually, all the four houses in this block of buildings were taken on rent. The dividing walls were either demolished or doors were opened in them and the entire block became the living beehive of the new spiritual colony.

Circa 17 June 1926

Barin Ghose 9

Page 20

The Mother's letter to her son Andre on 16 January 1927

Our community is growing more and more; we are nearly thirty (not counting those who are scattered all over India); and I have become responsible for all this; I am at the centre of the organisation, on the material as well as the spiritual side, and you can easily imagine what it means. We already occupy five houses, one of which is our property; others will follow. New recruits are coming from all parts of the world. With this expansion, new activities are being created, new needs are arising which require new skills.

The Mother 10



The house referred to in the phrase "one of which is our property" is the Meditation House. Eight days before the Mother's letter to Andre, that is, on 8 January 1927, Sri Aurobindo had signed an agreement of sale after paying the first instalment of Rs. 7000 to Raghava Chettiar, the previous owner of the Meditation House. Sri Aurobindo and the Mother moved to the house on 7 February 1927. The second and final instalment of Rs. 7000 was paid on 13 July 1927. Out of the five houses occupied by the growing community of the Ashram, the Meditation House was rented last but purchased first. The rental agreement was signed on 24 December 1926 for a monthly rent of Rs. 75 for a period of three years starting from 1 January 1927. An advance of Rs. 450 was paid on the condition that a few repairs would be carried out to the building before occupation. But within a fortnight, Sri Aurobindo and the Mother decided to buy the house, and an agreement of sale was signed on 8 January 1927.

Editor's Note

Sri Aurobindo and the Mother move to the Meditation House

One afternoon all the inmates of the Ashram houses were told to go out; the gates were locked and the Mother led Sri Aurobindo to the new house. When we came back we knew that the great Master had removed to the new house, which would henceforth be his abode. I, Nalini Kanto Gupta, K. Amrita, and a few others removed there too. The old building at Rue de la Marine was used for housing the Library and the stores department. Sri Aurobindo's room was given to Anilbaran Roy, the Congress leader of Bankura (a district of Bengal) who had come to the Ashram sometime back straight from jail after his release from internment.

Barin Ghose 11


Mother, last night during my personal meditation I saw a cat, probably one of your cats, the one which sleeps on the staircase; it came and entered my drawing room where I was meditating. But I at once opened my eyes. Kindly let me know the meaning of this cat and why I opened my eyes.

Rajani Palit

If it is the cat Bushy, she has some strange connection with the siddhi in the physical consciousness. It was she who ushered us into our present house running before us into each room. The change to this house marked the change in the sadhana on the vital to the sadhana on the physical level.

July 1936

Sri Aurobindo 12

Page 21

On the street is a pousse-pousse (an old type of rickshaw)

1922-1929, View from north-east

Page 22

The Meditation House

The Story of The Ashram Main Building - 0032-1.jpg

Note the balcony on the second floor which is not there in the previous photograph.

The Mother gave Darshan from this balcony from 1963 to 1973.

2005, North-east corner

Page 23

6th and 7th February 1927

The work has begun, test after test is being passed through. I entered to live in the New House at 7 p.m. Shri Aurobindo and Mira Devi entered the New House at 8.30 p.m. approximately. The House breathes of grandeur.

Haradhan Bakshi 13


8 February 1927

When they moved to Meditation House from Library House on February 8, 1927, Mother told me to carry certain things of Sri Aurobindo to Meditation House....

Champaklal 14

Two dates are available for the change of Sri Aurobindo and the Mother's residence from the Library House to the Meditation House. One would tend to give more credence to Haradhan's diary notation than Champaklal's recollection noted down at a much later date. Haradhan even notes down the time when Sri Aurobindo and the Mother "entered the New House". As his diary notation refers jointly to the events of 6 and 7 February 1927, it can be assumed that Sri Aurobindo and the Mother "entered the new House" on the day he wrote his diary notation - 7 February 1927. At any rate, there is no mention of the change of Sri Aurobindo and the Mother's residence in Haradhan's diary notation of 8 February 1927. It is possible that Champaklal dated the same event by the first day Sri Aurobindo and the Mother spent in the Meditation House, which is 8 February 1927. The 7th of February 1927, strictly speaking, was the day of shifting when Sri Aurobindo and the Mother spent most of the day in the Library House before moving to the Meditation House late in the evening at 8.30 p.m.

Editor's Note

Page 24

The Mother's letter to her son Andre on 16 February 1927

I think I told you about our five houses; four of them are joined in a single square block which is surrounded on all sides by streets and contains several buildings with courtyards and gardens. We have just bought, repaired and comfortably furnished one of these houses and then, just recently, we have settled there, Sri Aurobindo and myself, as well as five of the closest disciples.

We have joined the houses together with openings in some of the outer walls and outbuildings, so that I may walk freely in our little realm without having to go out into the street — this is rather nice. But I am busier than ever now, and I can say that at the moment I am writing to you in a hurry.

The Mother 15



The phrase "one of these houses" refers to the Meditation House. The repairs were done by a local contractor called Subramaniam. Chandulal, the Ashram engineer, had not yet arrived. Among the five disciples who moved in with Sri Aurobindo and the Mother were Barin, Amrita, Nolini and Haradhan. The last of the five houses mentioned in the first sentence is the Guest House, where generally guests or new disciples stayed for some time.

Editor's Note


Sri Aurobindo signs the Sale Deed of the Meditation House

An interesting incident happened yesterday:

Sri Aravind signed on the deed for the house he has purchased in the presence of local French citizens as per French law. Among the citizens were Philippe [Pavitra], M. Potel (husband of Madame Potel), David (barrister), Doraiswamy (not as a citizen but at Babuji's invitation), and the house owner. When everything was arranged in one of the rooms on the first floor of his house, the above named people went upstairs. Chairs were already placed there. First, Matushri [ the Mother] came and saw if all had come. Then she went inside. Next, they both came out, Sri Aravind in front and Matushri behind him. Doraiswamy made sashtanga-dandavata. Sri Aravind's seat was, as always, immediately beside the door. Everyone folded their hands. He himself was very serious. Taking the deed from the owner, Doraiswamy gave it to him. He read the whole of it. Meanwhile, Doraiswamy took the pen from the table, opened it and put it in Matushri's hand. She was standing beside his chair. Then he said, "Where have I to sign?" Doraiswamy pointed out the place. After signing, he immediately got up, bowed with folded hands to all and, without saying or doing anything, went inside.

Doraiswamy was saying that his body appeared very tender and much fairer than before. This was the first time he came out after November [24, 1926].

Write the above account to Chandulal at Bombay. To identify the room, write that this was the room where Matushri and Sri Aravind sit for meditation.

14 July 1927

Punamchand's letter to Dikshit

Page 25

Earliest Plans and Photographs


Earliest Ground Floor Plan of the Ashram Main Building

The Story of The Ashram Main Building - 0036-1.jpg

Untitled-1.png

The earliest ground floor plan that we have of the entire Ashram main building is dated 17 June 1931. Drawn by Chandulal, the Ashram engineer, it represents an already advanced stage of construction. The Old Secretariat has been demolished and the Balcony block and the rooms on the ground floor connecting it to the Meditation House have been built.


Page 28

Old Secretariat

The ground and first floor plans of the Old Secretariat were drawn in July 1929, before it was demolished and reconstructed. They give us the layout of the old building and enable us to reconstruct the plan of the Ashram building as it was prior to the construction work which began around September 1929.

Page 29

Reconstructed Ground Floor Plan of the Ashram Main Building

In order to reconstruct the plan of the Ashram main building as it was in July 1929, the ground floor plan of the Old Secretariat was superimposed upon the earliest ground floor plan of the Ashram main building drawn by Chandulal on 17 June 1931. As most of the old structures of the Library House, Meditation House and Rosary House have remained intact to the present day, the reconstructed plan should give us a fairly good idea of the Ashram building as it was in early 1929, and even a few years prior to that, assuming that not many changes would have taken place before the properties were bought by Sri Aurobindo. A few minor details missing in Chandulal's first drawing had to be added by using old photographs from that period, descriptions in the original sale deeds and interviews with Dyuman.

Page 30

The Story of The Ashram Main Building - 0039-1.jpg

Page 31

Perspective of the Ashram Main Building from south-east in 1929

The Story of The Ashram Main Building - 0040-1.jpg

Page 32

The Story of The Ashram Main Building - 0041-1.jpg

Page 33

The Story of The Ashram Main Building - 0042-1.jpg

Page 34

The Story of The Ashram Main Building - 0043-1.jpg

Page 35

The Story of The Ashram Main Building - 0044-1.jpg

Page 36

The Story of The Ashram Main Building - 0045-1.jpg

Page 37

The Story of The Ashram Main Building - 0046-1.jpg

Page 38

The Story of The Ashram Main Building - 0047-1.jpg

Page 39

The Secretariat and the Meditation House

View from south, 1926-1929

The Story of The Ashram Main Building - 0048-1.jpg

Page 40

The%20Story%20of%20The%20Ashram%20Main%20Building%20-%200049-1.jpg

Close-up of the Mother

Page 41

The%20Story%20of%20The%20Ashram%20Main%20Building%20-%200050-1.jpg


Page 42

The%20Story%20of%20The%20Ashram%20Main%20Building%20-%200051-1.jpg


Page 43

The%20Story%20of%20The%20Ashram%20Main%20Building%20-%200052-1.jpg


Page 44

The Meditation House


The%20Story%20of%20The%20Ashram%20Main%20Building%20-%200053-1.jpg


Page 45


The Library House Backyard


The%20Story%20of%20The%20Ashram%20Main%20Building%20-%200054-1.jpg

The%20Story%20of%20The%20Ashram%20Main%20Building%20-%200054-2.jpg


Page 46

The%20Story%20of%20The%20Ashram%20Main%20Building%20-%200055-1.jpg

Page 47

Perspectives and Elevations


Pondicherry Town


The plans for building the town of Pondicherry were first prepared by the Dutch and later developed by the French during their occupation. The oval shaped town had a series of parallel roads running east to west and north to south with roads on the periphery marking the limits of the town area. These roads were called the North, South, East and West Boulevards, beyond which were villages and agricultural lands. The town was practically divided by a Canal running from north to south, which carried drainage as well as rain water to the sea. To the east of this Canal were mostly administrative offices and residences of French officials built in the French Renaissance style. This area of the town between the Canal to the west and the Bay of Bengal to the east was called the "White Town". The remaining area west of the Canal was occupied by the people of Pondicherry. The houses in this area were built in the traditional Tamil style.


Method of Construction


Both for the traditionally built houses to the west of the Canal and for the French style houses to the east, the same materials and method of construction were used. The walls were about 60 cm thick and made up of brickwork, with a layer of bricks in lime mortar after every few layers of bricks in mud mortar. The wall surface was plastered inside and outside with lime mortar. The floors were built according to the then existing method called Madras terracing. This method utilised heavy wooden main beams to support joists or smaller wooden beams.

On this was laid a flooring about 20 cm thick made up of layers of thin bricks placed vertically in lime mortar and running diagonal to the joists. The final layer of bricks was placed horizontally and the top finished in lime mortar. The old buildings of the Library house, Meditation house and Rosary house were built in this way.


Construction of the Ashram Main Building


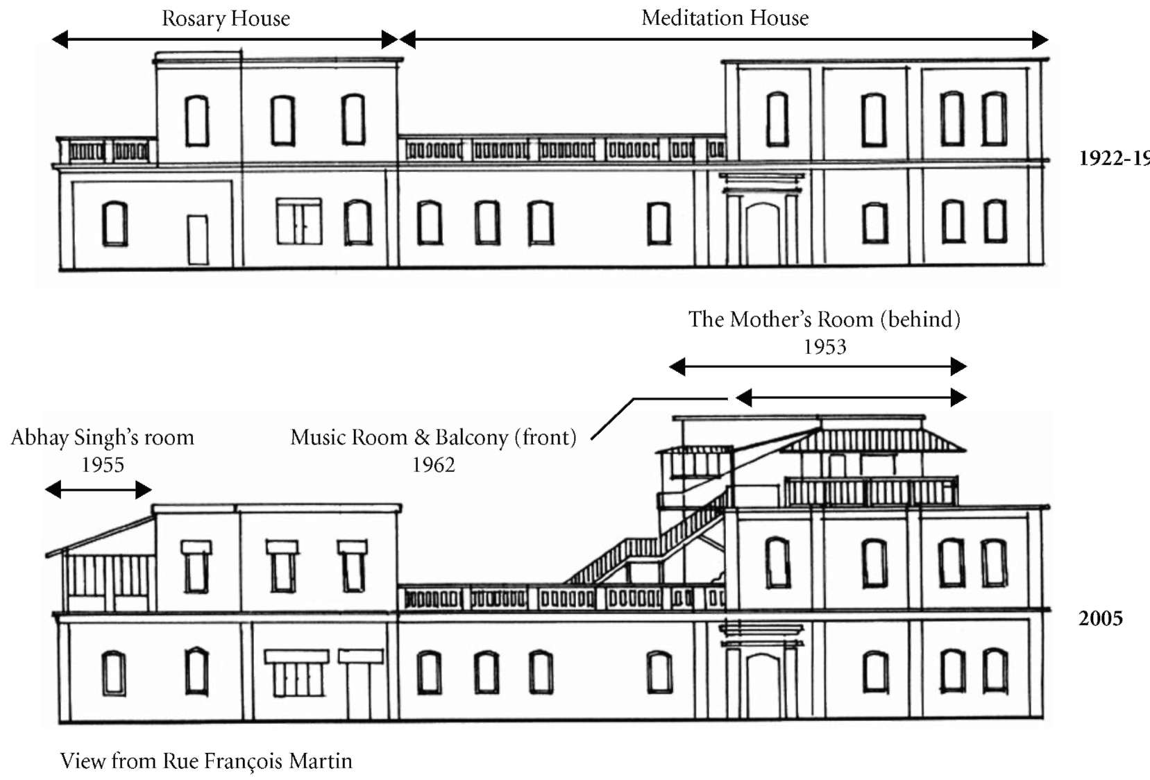
The new construction that took place on the north and west sides of the Ashram main building has load-bearing brick walls in cement mortar and not in mud mortar as in the older buildings. The notice board verandah and water filter passage have Madras terracing on steel joists. Pavitra's office and the garage for Mother's car have Madras terracing on wooden joists and beams. The north block consisting of Nirodbaran's room, the Bulletin Office and Dyuman's room has precast reinforced cement concrete (R.C.C.) rafters on which has been laid the R.C.C. floor. In this block, semicircular arches in brickwork were made above the door and window openings. The Mother's Room on the second floor is built on R.C.C. columns, beams and slabs. But the roofing for further extensions - the bathroom, the Music Room and the balcony on the east - were done with lightweight asbestos sheets. Similarly, for the extension on the south-east corner on the first floor (Abhay Singh's room) asbestos sheets were used. This was done to avoid heavy loads on the old walls below.


Ramakant Navelkar 17

Page 50


Construction of the New Secretariat

The construction of the New Secretariat is the biggest change that the Ashram building has undergone from 1929 up to the present. Unlike the other three houses where much of the old structure remains intact, nothing remains of the old building except bits of the compound wall. It was so well integrated into the structures of the Meditation House and Library House that it is now difficult to distinguish it from the other houses. The New Secretariat was built in two stages.

Stage One (1929-1930) was the construction of the reverse L-shaped Balcony block, ground and first floor, providing one long hall and a room for Pavitra upstairs and a place for his workshop (Atelier) downstairs. It left the old building intact and used the courtyard west of it — the space now occupied by the portico and garage of the Mother's car. It also partly covered the area of the Library House where an old garage had to be demolished for the purpose — the space now occupied by Andre's office. It was around this time that the Notice Board verandah probably got its new roof (the old tiled roof was removed) so that Champaklal's terrace was extended to more than twice its original size. The old garage facing Rue de la Marine was also demolished and the bathrooms west of the men's lavatory were constructed in its place.

Stage Two (1931-1932) was the demolition of Pavitra's old house and the construction of the connecting corridor and rooms joining the Balcony block with the Meditation House. The Mother's Salon, the connecting corridor of which the Green Room (the Mother's Boudoir) is a part, and the rooms on the ground floor then occupied by Dyuman, Radhanand and Chandulal (later by Prafull, Bulletin Office and Nirodbaran) are all part of Stage Two.



Construction of the Prosperity Block

Stage Three (1931-1932) was the building of the Prosperity Block (Prosperity Office and Stores) in the open courtyard to the north of the Library House. The ground floor and basement of this portion was joined with the Balcony block on the west. The garage beside the old Dining Room on the north-west corner of the Library House was demolished at this stage.

The term "Stage Three" has been used more as a convenience than to denote a precise chronological sequence, as work on the Prosperity Block seems to have overlapped with Stage Two.



Construction of the Cold Storage Block

Stage Four (1935) was the building of what is now the Cold Storage downstairs, including its machine room. It joins the Prosperity Office to the north and the main building of the Library House to the south. The old Dining Room was demolished at this stage.

Editor's Note


Page 51


Chronology of Construction (1929-1935)

The Secretariat and Library House were bought respectively on 23 March 1929 and 6 April 1929. Construction of the Balcony block began within a few months of their purchase and was finished around October 1930. The old building of the Secretariat was demolished in February 1931. The first floor was coming up when Nagin Doshi joined the Ashram in June 1931 and worked as a supervisor in the Building Service. The connecting corridor and rooms of Stage Two were ready with the Prosperity block still under construction on 1 January 1932 when Chandulal requested the Mother to inspect the new building. The Mother gave ten minutes for the inspection. Priority was given to finishing the Mother's rooms on the first floor, and, according to Dyuman, the Mother's Salon (the room above the Bulletin Office) was opened on 24 April 1932. This seems to have been celebrated by a music programme during which Dilip and Sahana sang in front of the Mother in the Meditation Hall downstairs. The ground floor was taken up next and Dyuman occupied his new room on 21 June 1932, two days after his 29th birthday. On this day, the Mother snipped selected portions from the manuscript of her Prayers and Meditations and distributed them to the sadhaks during a "Prosperity meeting" in the Library House. The Prosperity block came next. Purushottam, the sadhak in charge of Prosperity, moved into it in July 1932, but the electrical wiring of the entire block was completed only in September 1932. On 4 January 1934 the Dining Room and Kitchen were shifted to Aroumé, their present premises beside the Governor's house. The construction of what is now the ground floor of the Cold Storage block (Stage Four), was begun in January 1935 after demolishing the old Dining Room, and completed in August of the same year.



Later Constructions (1935-1962)

The later constructions, except for the Mother's second floor rooms which form a separate section, have not been gone through in detail. The following rooms, in brief, were added on the terraces of the Ashram building after 1935:


(1)The Fruit Room on the first floor on the north-west corner of the Ashram building was built in 1948.


(2)The Mother's Room on the second floor, overlooking the Samadhi, was built in 1953.


(3)Abhay Singh's and Navajat's rooms on the terraces of the Rosary House were built in 1955.


(4)Ravindra's rooms on the first floor of the Cold Storage Block were completed in January 1958.


(5)The Mother's Music Room and balcony on the east side were completed in December 1962.

Editor's Note


Page 52


Perspectives of the Ashram Main Building

The Story of The Ashram Main Building - 0060-1.jpg

Perspective from south-east (1929)


Page 53

The Story of The Ashram Main Building - 0061-1.jpg

What you see in the centre of the courtyard is not the Samadhi but the three tanks that were built in 1930 for construction work. Refer to chapter on the Samadhi.

Perspective from south-east (1947)


Page 54


The Story of The Ashram Main Building - 0062-1.jpg

Perspective from south-east (2000)

Page 55


Elevations of the Ashram Main Building


Changes in the North Elevation (1)

The Story of The Ashram Main Building - 0063-1.jpg

Page 56


Changes in the North Elevation (2)

The Story of The Ashram Main Building - 0064-1.jpg

Page 57


Changes in the South Elevation

The Story of The Ashram Main Building - 0065-1.jpg

Page 58


Changes in the West Elevation

The Story of The Ashram Main Building - 0066-1.jpg

Page 59


Changes in the East Elevation

The Story of The Ashram Main Building - 0067-1.jpg

Page 60


First Four Stages of the Construction

The Story of The Ashram Main Building - 0068-1.jpg

View of Old Secretariat from north-west before reconstruction (1922-1929)


Page 61



Balcony block built. Old Secretariat not yet demolished (1930)


Page 62

Stage Two of the Construction

Old Secretariat demolished. It was at this point of time that a temporary bridge was built on the scaffolding for the Mother to go from the Meditation House to the Balcony block. See pages 78-82.

June 1931

Page 63


New Secretariat and Prosperity block built (1932)


Page 64


Stage Four of the Construction


Ground floor of Cold Storage block built (1935)

Page 65

Photographs of Early Construction


Construction of the Balcony Block

The Story of The Ashram Main Building - 0074-1.jpg

Page 68



Nos travaux de construction sous la direction exclusive de disciples ingénieurs.
- Mere


Translation:

Construction work under the sole supervision of engineer-disciples.
- Mother


Page 69


Balcony Block under construction

View from north-east (Rue Saint Gilles) - circa September 1929


Page 70


The Story of The Ashram Main Building - 0077-1.jpg

Page 71


The Balcony Block

South view (2001)     [right image] South view (circa October 1930)

Page 72


The%20Story%20of%20The%20Ashram%20Main%20Building%20-%200079-1.jpg



Le nouveau batîment (côté jardin). A droite un coin de la vieille maison qui sera démolie dés que l'autre sera terminée.
- Mere


Translation:

The new building (garden side). On the right, a corner of the old house which will be demolished when the other will be completed.
- Mother




Page 73



The Balcony block has been built but the Old Secretariat has not yet been demolished. The Mother with disciples in front of the main gate of the Old Secretariat.

circa October 1930 View from Rue Saint Gilles

Page 74

The Story of The Ashram Main Building - 0081-1.jpg

Page 75


The Story of The Ashram Main Building - 0082-1.jpg

Page 76


The Mother's Evening Drives


In the other building [Old Secretariat] attached to the house of the Mother and Sri Aurobindo lived "Pavitra", a Frenchman named P.B. Saint-Hilaire, on the first floor. Chandulal, the Ashram engineer, lived in a room on the ground-floor of this building. This building, too, had a door leading to the road on the North. The Mother used this door to leave the Ashram premises for her daily evening drive lasting for about an hour and a half. It was Pavitra who drove the Mother's car. Many inmates of the Ashram used to assemble near the door at the hour of the Mother's going out to get a glimpse of her. Later the old building was pulled down and a new one constructed on the site.

Sahana Devi 18


Page 77


The Mother's Bridge

The other day you were saying that this whole structure, this whole building was rebuilt in the thirties.

It was all demolished and newly built. When I came, I was supervisor here.

It was built right from the basement?

Yes, yes. But when I reached the Ashram, it had already come up. We were almost on the upper floor. Pavitra's quarters were ready and he was living there [pointing at the Balcony block]. Mother was living there [pointing at the Meditation House] and those rooms above Dyuman's room were being built. One important thing you should know is this, that when this second storey was being built, the Mother used to go to Pavitra's room to give him meditation at 12 o'clock at night, and she used to walk on the scaffolding!


An Interview with Nagin Doshi 19

When the old Secretariat was demolished, a temporary bridge on the scaffolding was made for the Mother to walk across from the Meditation House to the Balcony block. The photos in this section show the bridge starting from the bathroom door on the first floor of the Meditation House and, after following a zig-zag course, ending on the portico of the Balcony block. The Mother walked on this bridge to go to Pavitra's room, according to Nagin Doshi. The term "Mother's bridge" has been taken from the work reports of Mrityunjoy who was in charge of the Electric Service during this period. In mid-June 1931, he fixed bulbs on the two ends of the bridge to provide light for the Mother when she walked on it.


Editor's Note


The bridge in the photograph on page 79 seems to have preceded the one in the other photographs of this section. Part of the old undemolished house is used here with railings on the side whereas the later one is almost entirely built on the scaffolding.

Page 78


The Story of The Ashram Main Building - 0085-1.jpg

Page 79

View from south-west (1931)


Page 80


The Story of The Ashram Main Building - 0087-1.jpg

Page 81


View from south-east, circa June 1931

Page 82


The%20Story%20of%20The%20Ashram%20Main%20Building%20-%200089-1.jpg


Page 83


The%20Story%20of%20The%20Ashram%20Main%20Building%20-%200090-1.jpg


Page 84


The%20Story%20of%20The%20Ashram%20Main%20Building%20-%200091-1.jpg


Page 85

Completion of the New Secretariat

The%20Story%20of%20The%20Ashram%20Main%20Building%20-%200092-1.jpg

The New Secretariat was completed in 1932

1932-1942, View from south-west


Page 86

Construction of the Prosperity Block

The%20Story%20of%20The%20Ashram%20Main%20Building%20-%200093-1.jpg

The Prosperity block was completed in 1932

1932-1934, View from north-west


Page 87


The%20Story%20of%20The%20Ashram%20Main%20Building%20-%200094-1.jpg

The Ashram main building after completion of the Prosperity block and before construction of the Cold Storage block.

1932-1934 - View from north-west

Page 88


The%20Story%20of%20The%20Ashram%20Main%20Building%20-%200095-1.jpg



Page 89

The%20Story%20of%20The%20Ashram%20Main%20Building%20-%200096-1.jpg

Page 90


The%20Story%20of%20The%20Ashram%20Main%20Building%20-%200097-1.jpg


Page 91


The%20Story%20of%20The%20Ashram%20Main%20Building%20-%200098-1.jpg

Terrace of the ground floor of Cold Storage block before construction of the first floor. Golconde seen at the back.

1947-1948, View from south-east



Page 92


The%20Story%20of%20The%20Ashram%20Main%20Building%20-%200099-1.jpg

The first floor of the Cold Storage block was completed in January 1958

1958-1962 - View from north-west

Page 92

The%20Story%20of%20The%20Ashram%20Main%20Building%20-%200100-1.jpg

Recent view of the Cold Storage block

2001 - View from south-west

Page 92

The Story of the Samadhi



The Samadhi


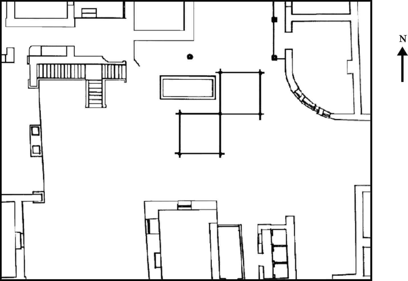
A visitor to the Ashram building today would admire the perfect arrangement of the pillars and the Service Tree in relation to the Samadhi. The tree gives shade to the Samadhi and the courtyard around it and the pillars support the tree. The pillars also provide the supports for the cloth canopy above the Samadhi. The crossbeams around it give vantage on the east for people to stand and concentrate while leaving enough space on the other three sides to kneel down comfortably. The visitor would naturally assume that the Samadhi came first, the tree next and the pillars last. It was not so. The tree came first, the pillars next and the Samadhi last! If the visitor should insist that the arrangement is too perfect not to have been pre-planned, we have Dyuman's answers to one such set of questions.

Editor's Note



Was there any particular reason for planting the tree there?

No, we were doing gardening. We [Ambu and myself] were under Manubhai; he went and brought a sapling and we put it there.

Was it intended to be central or was it just a tree there?

It may have been decided in the upper world, it has to be; otherwise why should it be there?

When you planted it, you didn't think that it would be dominating the courtyard?

We didn't know. She [the Mother] may have known it in the occult world.

Was the Mother aware that you are going to plant a tree here?

Why, even the smallest thing we did not do without asking her.


An Interview with Dyuman

Page 96


The Story of The Ashram Main Building - 0103-1.jpg

The Samadhi of Sri Aurobindo and the Mother

2001, View from south-west


Page 97


The Service Tree providing shade to the Samadhi

2001, View from west



Page 98


The Story of The Ashram Main Building - 0105-1.jpg

The pergola supporting the Service Tree, 2001


Page 99


The Three Tanks

When this house was being built, we required some place to wash the bricks. So three cisterns were made, three tanks, and all the bricks of the house were washed there.

Dyuman 21



The three water tanks were made for the purpose of washing bricks when the construction of the New Secretariat began around September 1929. Some modifications were apparently made to them by the time the concrete pergola was built in 1942 - compare the photograph on the next page with the drawings and photograph on pp 106-107 and 109. This last structure was demolished in 1950 and the Samadhi was built in the same place. After constructing the chamber on the east to intern Sri Aurobindo's body, Udar Pinto was instructed by the Mother to add the small extension on the west to conform to the structure that had been there.

Editor's Note


Page 100



The water tanks built at the time of the construction of the New Secretariat.
The staircase leading to Champaklal's room is on the right.

circa 1929, View from north-west


Page 101



The central courtyard of the Ashram main building

1929, View from east


Page 102


The Kitchen in the Rosary House with the branches of the Service Tree on its tiled roof.

.

1932-1942, View from south-west


Page 103


The Planting of the Service Tree


There was a mango tree where the Service Tree now stands. The mango tree had to be cut down; the Mother asked us to get a Service Tree plant from the Botanical garden. As Parichand is now the Ashram gardener, Manubhai was then the gardener - his helpers were Ambu and myself. The tree was planted on a Tuesday in [May] 1930.


Dyuman 22


Fill the tanks and put pots of fern


The cats were always running about and she [the Mother] did not allow us to remove those three tanks when this house was built. She said, "Fill them up and put corrugated sheets on top." We put galvanised sheets and the tiles would drop on them when the cats fought on the roof of the old kitchen, making a huge noise in the middle of the night. We asked her, "Mother, why not remove these things?" She said, "No. If you like, remove the corrugated sheets and put pots of fern"


Dyuman 23


The pergola supporting the Service Tree

The Service Tree began to grow; the branches began to go on the roof of the old kitchen. When we had to remove the old kitchen, what to do with the branches which were taking support on it, how to support them? So this scaffolding was built, what we call the Sanchi railings were built. They were done by Sammer, the architect from Czechoslovakia, who had come here with Raymond and Nakashima. The three together built Golconde. So this whole construction in the Ashram courtyard was done by Sammer and, at the foot of each pillar, you'll find a square place. You see, the Mother used to come in the evening on the terrace and give meditation. Her idea was to have grass in each square but that could not be done, so pebbles were put.

Dyuman 24


Demolition of the old kitchen


It was demolished when the Japanese threw a bomb in Madras and Calcutta [ in 1942]. Fearing that something may happen here, we were given training - how to extinguish fires, etc. I told the Mother, "Mother, this is alright, but with you here, if something happens on it [ the old kitchen], I am sure to go on its roof, which is sure to come down with me." Thus the whole thing was demolished.


Dyuman 25

Page 104



Sammer's design of the concrete pergola to support the Service Tree

1942, View from south-west


Page 105


The Story of The Ashram Main Building - 0112-1.jpg

Page 106


The Story of The Ashram Main Building - 0113-1.jpg

Page 107



The original pergola had only seven supports forming two squares (1942)


Page 108


The Story of The Ashram Main Building - 0115-1.jpg

The central courtyard of the Ashram. The structure with pots of fern on top can be seen behind the group of children. (1942)


Page 109


The Possibility of a Glass Case

December 6th - I entered Sri Aurobindo's room before dawn. Mother and I had a look at Him; how wonderful, how beautiful He looked, with a golden hue. There were no signs of death as science had taught me, no evidence of the slightest discoloration, or decomposition. The Mother whispered, "As long as the supramental light does not pass away, the body will not show any signs of decomposition, and it may be a day or it may take many more days." I whispered to Her, "Where is the light you speak of - can I not see it?" I was then kneeling by Sri Aurobindo's bed, by the Mother's feet. She smiled at me and with infinite compassion put Her hand on my head. There He was - with a luminous mantle of bluish golden hue around Him.


With the morning came the procession of people, taking a last glimpse of the Divine Master. The Mother said to me, "People do not know what a tremendous sacrifice He has made for the world. About a year ago, while I was discussing things I remarked that I felt like leaving this body of mine. He spoke out in a very firm tone, 'No, this can never be. If necessary for this transformation I might go, you will have to fulfil our yoga of supramental descent and transformation!' "

Prabhat Sanyal 26



I also saw, to my utter wonder and delight, that the entire body was suffused with a golden crimson hue, so fresh, so magnificent. It seemed to have lifted my pall of gloom and I felt light and happy without knowing why. When the Mother came, I asked naively, "Mother, won't he come back?" "No!" she replied, "If he wanted to come back, he would not have left the body." Pointing to the Light she said, "If this Supramental Light remains we shall keep the body in a glass case." Alas, it did not remain and on the fifth day, on the 9th of December in the evening, the body was laid in a vault.

Nirodbaran 27

Page 110


When was it decided to make a glass case?

You see, Sri Aurobindo passed away on the fifth and arrangements for burial in the Ashram courtyard were started after Pavitra obtained permission for it from the Government. At the same time, Panou started making the coffin of rosewood with silver lining. Then, on the sixth, as Mother found no deterioration whatsoever in Sri Aurobindo's body, she decided to keep it in a glass case instead of burying it. A shopkeeper from Madras, I don't remember his name, had come for the last Darshan of Sri Aurobindo. He offered to help us in getting the glass from Madras. Jayant Patel and myself went with him and he arranged for the glass from China Bazaar. We came back the same evening and the glass arrived without breakage on the seventh morning. Panou received the glass and was about to start making the glass case when the message came from Udar asking Panou to stop work on the glass case and resume work on the coffin. So that was the situation.

So, at first, Mother didn't think of a burial, she thought of keeping the body in a glass case?

She did think of a burial in the beginning. Then, as the body showed no signs of deterioration, she decided to keep it in a glass case. But when the body showed some signs of deterioration (we, of course, didn't notice it), Mother decided to go ahead with the burial.

So there was a possibility of no burial at all?

Yes, it was a possibility. I fully remember that Mother first said, "There will be a showcase, no burial." And then, on the third day, Mother said, "No. We will change to burial."

An Interview with Vishwanath Lahiri 28

Page 111


Construction of the Samadhi


When I went to the Mother, She gave me full instructions about where to bury Sri Aurobindo and asked me to go down to a depth of eight feet. There was already there a construction of sorts on which flower pots were kept and all that had to be broken down and the pit dug up. Some roots of the tree over the place had to be cut and Mother gave precise instructions about this. The whole thing had to be finished in one day as we did not know, at the time, that His body would not decompose, and so we had to work very fast and very hard.

About the digging, which was the most difficult work, I remember two persons who worked very well and very hard. One was a visitor, a Jew, one Dr. H.P. Kaplan, who was staying at Golconde at the time. He worked like four men. It was wonderful to see how well and quickly he worked. The other was our dear Biren, the boxer. He also worked wonderfully. So many of our sadhaks and sadhikas worked and even the children. We needed many persons as we did all the work ourselves and did not bring in our paid workers. Besides the digging, the soil had to be taken away and the hollow blocks of cement concrete had to be brought from the Coco Garden and also the present reinforced concrete slabs, to form the cover of the pit. We dug down to eight feet below the ground level and then we rammed down the earth and laid a layer of about six inches of solid, dense concrete as the base, and this was plastered over to make a good clean floor. Then the four side walls were built, using the concrete hollow blocks from Coco Garden, with the hollows vertical and these hollows were then filled with concrete so that the walls were of solid cement concrete, eight inches thick. We went up about four and a half feet and then levelled off to lay the cover, which was to be of the pre-cast slabs from Coco Garden, about 1 V inches thick of well reinforced cement concrete. Then the walls were also plastered and the room made ready for the body of the Lord. All this was done in one day, on the 5th December 1950.

But the body of Sri Aurobindo did not decompose; it lay on His bed, with a royal and calm look and with a great and wonderful golden light all around Him. The golden light was really marvellous. His body lay in this state till the morning of the 9th December when the Mother gave Her order to put Him into the coffin we had prepared and to lay Him in the room we had made ready. Although Dr. Sanyal said that decomposition had set in, I was not convinced that it had, as there was no smell at all of decomposition, a very unmistakable smell. But Mother said that as the golden light had withdrawn and a greyness was coming on His face, that was the sign She had received for the burial to take place. But, She allowed me to keep my belief which is that His body will not decompose for thousands of years but will remain, grey in colour and much thinned down by the loss of liquid and with all the features quite intact. I had seen, in my youth, the body of Saint Francis Xavier in Goa and had noted the greyness of the colour of the skin and the shrinkage of the flesh, but that all the features were quite intact, even the eyelashes on the eyes. That is my belief and the Mother did not discourage it. So I had prepared a very, very solid coffin, lined with silver sheet and with a thick and solid cover and a rubber gasket all around and with so many screws that even small bacteria would not

Page 112


be able to enter from outside. I did not want that things from outside should attack His body.

When I lifted His body to place it into the coffin, the whole body was lying in the liquid that had come out of it. Normally such liquids have a very foul smell, but, in this case, the liquid had a celestial perfume that was really wonderful. My whole body, my clothes and all, was soaked with this liquid and it was so good that I did not change my clothes or even bathe for some days, to keep all that wonderful perfume on me.

After His body was laid in the room we had made ready for Him, the concrete slab cover was put on and fully sealed and plastered to make the floor of the room to be built above it. This room was built a bit later in the same way as the lower one, to a height of about four and a half feet, and when it reached its top, it was about two feet above the ground level.

Regarding this second room when the Mother had asked me to build it, I protested as I knew that this room was meant for Herself and I did not want to participate in anything that anticipated Her leaving us. But the Mother was adamant and said to me what She had never said before, "I order you to do it!" After that there was nothing but to obey.

The portion above the ground level, to a height of about 2 V feet, was built with an added piece to the west, to conform to the original structure which had the flower pots on it. This is the present form of the Samadhi as seen above the ground level. The surface of this was at first just finished with cement plaster and grey washed, to match the rest of the Ashram buildings. The Mother did not want anything elaborate.

But, with the constant stream of persons coming to the Samadhi, this surface became soon quite soiled and, before each Darshan, the whole had to be scrubbed and washed and repainted grey. This went on for many years and it was only in the mid sixties that the Mother agreed to the marble cladding of the surfaces....

In all, 54 pieces of marble were brought and with these the cladding was done and completed on the evening of the 3rd April 1967, on the eve of the 4th April which is the anniversary of Sri Aurobindo's arrival at Pondicherry.. When the Mother left Her body, the top slab had to be lifted off and for this some of the marble had to be chipped off and replaced by some pieces which we had kept. This second cladding was finished in the night of the 23rd November 1973, the eve of the 24th November, the Siddhi Day.

Udar Pinto 29

Page 113


The Story of The Ashram Main Building - 0120-1.jpg

Sri Aurobindo's Samadhi

9 December 1953, View from north-west

Page 114


The Samadhi under the shade of the Service Tree


26 April 1951, View from south-west


Page 115

The%20Story%20of%20The%20Ashram%20Main%20Building%20-%200122-1.jpg

The Samadhi at noon

February 1957, View from south-east


Page 116

The%20Story%20of%20The%20Ashram%20Main%20Building%20-%200123-1.jpg

Sri Aurobindo’s Samadhi

View from south-west

Page 117

The Mother's Rooms on the Second Floor


The Mother's Room

The Mother did not have a room of her own [until 1953]. She used to rest in a hall [the Salon] adjoining Sri Aurobindo's rooms. But it was a sort of public hall. People were constantly coming in and going out, so the Mother was never left in peace. But being the Divine Mother, she never uttered a word against it. She was accustomed to putting up with all kinds of discomfort, disturbance and inconvenience. But this caused great pain to Dyuman. He began thinking of how to have a separate room for the Mother.

One day she felt indisposed and returned from the Playground before nightfall. She called Dyuman and said, "Get me a pillow. I want to lie down flat."

Dyuman rushed to bring a pillow and gave it to her. The Mother put off the lights and rested for half an hour. Dyuman became pensive. He mused, "The Mother does not have a private room where she can rest undisturbed during the day. The coming and going of people stops late at night and only then can she rest for some time." He found this situation unbearable. He told the Mother, "Mother, where will you rest if you fall ill during the daytime? Where can you lie down? This is a sort of a common room. Should you not have a private room?"

The Mother agreed with him, but added immediately, "Dyuman, you may construct a room for me, but see that you do not spend any Ashram money for it."

Dyuman accepted the Mother's condition. He wrote to his close friend Navajata in Bombay to send a lakh of rupees for the construction of the Mother's room. What was it that Navajata would not do for the Mother? He immediately sent the money and Dyuman built a room for the Mother.

Ranadhir Upadhayay 30


Page 120


The Mother moves to the second floor

It was also during 1953 that a disciple offered to construct a new room for the Mother above the first floor of the Meditation House. Soli Albless, another disciple, was one of the architects entrusted with the task of designing and building the room overlooking Sri Aurobindo's Samadhi. The spacious room was completed and properly furnished by the first week of December and was ready for occupation.

Srinivas Iyengar 31


What is known as the Mother's room is the room which is opened for Darshan on her birthday (21st February) and the day of her passing away (17th November). It was built by Soli Albless in 1953 and it should not be confused with the Music Room (also known as her Reception Room) built by Udar Pinto in 1962. Both are on the second floor of the Meditation House; the former is on the west overlooking the Samadhi while the latter is adjacent to the balcony on the east. It should be noted that the Mother also stayed in other rooms of the Ashram main building at different times, though these are not known as such. See pages 160-61, 170-73.

Editor's Note


On the morning of the 9th December, 1953, after meditation, Mother informed Dyuman that she would go up to her new room on the second floor from that night. Thereafter she spent the nights there. And now and then she would spend some time there during the daytime also.

Champaklal 32

Page 121


The Mother's Room on the second floor of the Meditation House has not yet been built.

1947-1948, View from north-west


Page 122


The Story of The Ashram Main Building - 0128-1.jpg

The Mother's Room on the second floor has been built.
Note that the Music Room is not yet there.

September 1955, View from north-west

Page 123


The Story of The Ashram Main Building - 0129-1.jpg

Close-up of the Mother's Room on the second floor

September 1955


Page 124


The Story of The Ashram Main Building - 0130-1.jpg

The Mother in her room

4 January 1960

Page 125


Redesigning the Mother's Room

Were you involved in the construction of Mother's Room on the west?

No, because at that time [1953], I was not in charge of the Drawing Office, I was in the Electric Service. But during the construction, Udar and I, we both did the vibration of the concrete.

Who designed it?

Soli Albless designed it. Umirchand executed it and I was doing a little supervision here and there. And in Albless' design, the windows were jutting out and Mother had no end of problems with the rains getting in. So we had to put a verandah all around to protect the windows from the rains. The verandah was added later on [in 1958]. We had put in concrete cantilever beams for the verandah into the wall below, and then we could cast the verandah and, over that, the asbestos roof was provided.

An Interview with Vishwanath Lahiri 33


Page 126



The Mother's Room before the verandah and shade were built around it.

1953-1958, View from south-east

Page 127


The Music Room and the East Balcony


Mother had been presented with a wonderful Wurlitzer Electric Organ on which She would play regularly. It was kept in Pavitra's room. This also She could not use now. Then one day I said to Her that unless She played on the organ from time to time it would get spoiled, and none of us would like to play on Her organ. So Mother asked me what was to be done and I suggested that we bring the organ up to Her new room [the room overlooking the Samadhi]. She refused to agree to this as She said that there was no space for the instrument in Her room: it would upset the balance of the furnishing of the room. So then I suggested that we build a special room next to Her bathroom as there was enough place on the terrace for it. Mother agreed to have a small room specially for the organ, and we set about to design it.


Now my Aunt Mary had given to Mother a beautiful carpet, an Aubusson, which she had herself received from the Maharaja of Mysore. Mother liked the carpet very much but did not know where She could use it. So we decided to put it into the Music Room that we were designing. We then did a strange thing: we designed the size of the room to fit the carpet instead of getting, as is usual, a carpet to fit a room. This made the room quite large and then there was still some space left between the end of the room and the eastern extremity of the building. That space, we felt, could well be used for a covered balcony which could be carried round to the south side also. This change we kept rather secret and did not even inform Mother about it. It also meant quite a bit more expense. So Dyuman, who had to find the money for all the work, was annoyed at this additional expenditure which had not been sanctioned by Mother, and he expressed himself quite strongly.

When all had been built I informed Mother that everything was ready for Her to see, and She came to see. She liked very much the large Music Room in which we had already installed the organ. Then She looked out east and saw the balcony and She said: "Udar! What is this you have done? A balcony! Do you expect me to start giving Darshans again from here?" I replied: "Mother, I expect nothing but only that You are happy with what we have done. So please come out and see this balcony." And Mother came out. In the meanwhile, we had sent word around that Mother might come on the new balcony, and so there were people all about, on the street and on each surrounding terrace, etc. Almost the whole Ashram had turned out and they all had a Darshan of Mother, after such a long time. Mother gave a real Darshan, standing some time looking at all as She did whenever She gave Darshans. All were so happy and Dyuman came to me and embraced me warmly and said: "Udar, forget all I said before. Our people have had Mother's Darshan at last. This is worth all that has been spent and even more; I am very, very happy." This brought tears to my eyes because I am very fond of Dyuman and was not happy that he had been angry with us. Now it was all wonderful.

This, then, is how the new balcony came to be and Mother gave Her Darshans on every Darshan Day from there. The Music Room was also very useful to Her, not only for Her to play the Organ but also to give Her interviews: She could be quiet and undisturbed there. So on every count it was a very happy thing brought about by Mother's Grace and by Her Love.

Udar Pinto 34

Page 128


The Story of The Ashram Main Building - 0134-1.jpg

The Mother’s Music Room and balcony on the second floor.

21 February 1963, View from Rue François Martin

Page 129


The Story of The Ashram Main Building - 0135-1.jpg

The Mother's Music Room and balcony on the second floor.

To the left partly hidden by the branches of the Service Tree is her room built in 1953.

1965, View from south


Page 130


The Story of The Ashram Main Building - 0136-1.jpg

The Mother in her Music Room

14 December 1965


Page 131


Terrace Darshan


On her eighty-fifth birthday (21 February 1963), the Mother gave Darshan in the evening at 6.15 from the new "balcony" on the terrace adjoining her apartments on the second floor of the Meditation House, the north-east section of the main Ashram building. A large number of disciples and admirers had gathered in the street below, and they had their long-awaited Darshan of the Mother and her benedictions. For almost thirteen months there had been no Darshan, and hence this was truly an uncommon event. Fair and frail in appearance yet visibly divine, the Mother stood in her simple attire, and surveyed and blessed the mass of humanity looking up to her in love and adoration. There was the union of poise and slow rhythmic movement in her sustained semi-circular sweep of compassionate comprehension, and everyone of the rapt and packed congregation thought the Mother had eyes for him or her alone, and everyone's face lighted with the mystic glow of ineffable fulfilment.

Srinivas Iyengar 35


When the Mother fell ill in March 1962, she stopped coming down from the second floor to give the Balcony Darshan. After skipping it on the 17th and 19th, she gave her last Balcony Darshan on the 20th of March 1962. As her room on the second floor (the room overlooking the Samadhi) had only an attached toilet, plans for a new bathroom were immediately drawn and executed. The new bathroom on the second floor was ready on 11 May 1962. The Music Room and the balcony to the east were completed on 15 December 1962. When the Mother came to inaugurate them on the next day, that is, on the 16th, there was such a crowd of people on the streets and rooftops wanting to see her that she "had no choice but to go out on the balcony". Though this could be recorded as her first Terrace Darshan, the first official Terrace Darshan was on 21 February 1963. Apart from a few special occasions, the Terrace Darshans were given only on the four Darshan days, that is, 21 February, 24 April, 15 August and 24 November, ending with the last Darshan on 15 August 1973.

The two balconies used for Balcony Darshan and Terrace Darshan should not be confused. The Balcony Darshan refers to the Mother's Darshan from the balcony on the north side of the first floor of the Secretariat; the disciples gathered daily on Rue Saint Gilles at about 6.15 a.m. until March 1962. The Terrace Darshan refers to the Darshan from the balcony on the east side of the second floor of the Meditation House. Strictly speaking, this is a terrace enclosure and not a balcony. The disciples gathered on Rue François Martin from 1963 to 1973 and the starting time of the Terrace Darshan varied from 5.15 to 6.15 p.m., depending on the month and the year.

There was also a "Terrace Darshan" during the mid-forties when the Mother used to walk at about 10 a.m. on the terrace of the first floor of the Meditation House and the New Secretariat before her rooms on the second floor were built (see pp. 148-153). When this was suspended, the term "Terrace Darshan" became associated with the Darshan the Mother gave from the second floor balcony to the east from 1963 to 1973.

Editor's Note


Page 132



The Mother's Terrace Darshan

21 February 1963, View from east (Rue François Martin)

Page 133



The Mother's Terrace Darshan

29 December 1967


Page 134


The Story of The Ashram Main Building - 0140-1.jpg

The Mother's Terrace Darshan

View from east (Rue Francois Martin)

Page 135


The Story of The Ashram Main Building - 0141-1.jpg

Page 136


The Story of The Ashram Main Building - 0142-1.jpg

The Mother's Terrace Darshan

28 December 1967


Page 137


The%20Story%20of%20The%20Ashram%20Main%20Building%20-%200143-1.jpg

[Left Image] The balcony to the north of the Ashram main building used by the Mother for “Balcony Darshan” from 1938 to 1962.

Page 138


-08_Th1.jpg

Early morning view of the Ashram main building from north-east showing both the balconies

April 2004


Page 139

Balcony Darshan


Often you have asked me to write to you about the most striking things of the Ashram here and so long I have somehow dodged the issue. You see, it isn't at all an easy job to pick and choose the striking things of the place. I am still, like a novice, seeing things more than understanding their deeper import. However, just to satisfy your curiosity, I am giving below some idea of what's known as the Balcony Darshan here. In my view it is the most marvellous part of the daily routine followed here and I have attended it almost every day of my stay here. Yet who can conspire with words to arrest and confine the peculiar thrill of the union of the human soul with the Divine? It is no ordinary darshan we see before us. There is no proclamation, no ceremony, no obsequious bowing or supercilious admittance. Here is no hurry, no bustle, no pushing nor jostling. Here there is no newspaper trumpeting of numbers, nor pompous festoonings and loud greetings.

Here is the quiet rhythmic beauty of a simple gathering of human souls below and the smiling peace and power of the graciously humanised Divinity.

Just mark, what a fine pattern of meeting quietly unfolds itself!

The drowsy mists of the night are fled and Dawn is slowly breaking, developing into day. The birds are astir with the eager songs for the coming glory. Our human hearts are aflutter with the desire to see the Mother. It is time for her to appear at the balcony - should I add, the infallible balcony of our sincere aspiration? From the east, from the west, from north and south, aspirants of all ages and climes, workers, scholars, poets and sportsmen are moving to the one gravitational point of the balcony of grace. They are like muted waves driven to the shore by a simple, sweeping breath of some invisible power. Nothing, it seems, can resist this centripetal movement. Whether one comes alone or in twos and threes, the driving force is one undivided Presence. Within a few minutes, the whole scene of multitudinous gathering gets set before us. Small children have selected a little spot of their own. Free and frolicking as they are, they must have their little chat and fun even here and at this hour. The Mother keeps them in her breast forever and need they suspend their little talk and play for the sake of what we call conscious aspiration? And yet here even these child-souls never for a moment forget the purpose for which they have come, the glimpse of the loving mother they will have. But some of the grown-ups among them are already quietly standing or sitting apart, trying to awaken the proper spirit of welcome in their bosom and thought. Some of the adults quietly talk shop for a while; they almost automatically adjust themselves to the divine hour. But most are wholly engaged in silently sending prayers from the places they have chosen themselves. Each has his or her own favourite spot and as soon as they are on it, their inner being, it seems, gets in touch with the Divine Mother as though some unerring Finger has tuned them at once to a spell-binding mood of celestial waiting.

Except for the little children's audible prattling, the whole assembly is now gathered to such a silent upsurge of meditative quietness, there is now

Page 140

created such a superhuman atmosphere of calm expectation that the scene appears to be ideally set for the purifying advent of the golden Dawn.

While this silent drama of human aspiration is being staged below, O with what an incredible quietness but no less unhurrying quickness the gracious body of the supreme Mother now appears like some fairy queen at the balcony above! Not only all eyes but all hearts and souls are instantaneously turned towards the heavenly face with bated breath. What a perfect puissant peace now growingly spreads over the purified place! As though some magic Will said "Let there be peace" and so there was the clear birth of peace all round. Even the children are hushed into silence.

While all eyes and thoughts are centred on the unfolding glory above, the divine eyes quietly survey the upturned being below. What inimitable phases of the beauteous smile, what outflowings, emanations of the superhuman compassion, what a personal touch of security and succour to each! There is an expansion of the soul-movements opened from below, there is a swift spontaneous widening of the human consciousness all round. Even the children are affected. All corporeal movements are suspended. All have ceased to live in their body. There is a strange silent transformation indeed! If one has the inward sight to see, one knows that bodies of inert clay have momentarily turned into undying flames of conscious beings. Time itself seems to stand still. Eternity has been squeezed into a few minutes. The human soul is face to face with the Divine Reality. The very atmosphere takes on the radiance of the divine beauty. The breeze plays a celestial music. The soul blossoms with a rapturous fragrance. Wearing a smiling gravity all through, the multiform, multi-dimensional aspects and powers of truth converge upon a single leaning, down-looking expression of the Mother. The earth is gathered up into the heavenly vision. Truth alone rules and triumphs....

Shreekrishna Prasad 36


Page 141


The%20Story%20of%20The%20Ashram%20Main%20Building%20-%200147-1.jpg

[Left Image] Disciples walking towards the balcony on
Rue Saint Gilles for the Mother’s Balcony Darshan
1950, View from east

[Right Image] Disciples waiting for the Mother’s Balcony Darshan
1950, View from west


Page 142

The%20Story%20of%20The%20Ashram%20Main%20Building%20-%200148-1.jpg


Page 143

The%20Story%20of%20The%20Ashram%20Main%20Building%20-%200149-1.jpg

Balcony Darshan

24 April 1954

Page 144

The%20Story%20of%20The%20Ashram%20Main%20Building%20-%200150-1.jpg

The Balcony Darshan attended by the young and the old

24 April 1950

Page 145

The%20Story%20of%20The%20Ashram%20Main%20Building%20-%200151-1.jpg

Page 146

The%20Story%20of%20The%20Ashram%20Main%20Building%20-%200152-1.jpg

Balcony Darshan

1959

Page 147

The Mother's Terrace Walk


After giving a biscuit to the crow, Mother went like this and stood here [see Point 1 in drawing] and we had her darshan. We were very young, we tried to go to the top of the staircase there [Kamalaben's staircase]. You might know Jwalanti and Nishtha, they sat with us.

Was this immediately after the Window Darshan?

After some time, within half an hour, by ten o'clock.1 She would feed the crow and come and stand here [Point 1]. She saw everybody, and then she would go up by this staircase.2 She went to the top where is now her room, that is, the top landing of the second floor. She stood there [Point 2], and from there, looked again this side [south]. We all used to be here [in the courtyard south of Madhav Pandit's office]. Then from there, she walked straight to Pavitra's terrace. On that terrace, she came right up to the edge [Point 3]. She stood there in the middle, just above the door of Pavitra-da's room. From here [courtyard south of Dyuman's room], we ran there [to the courtyard south of Pavitra's room]. The Service tree was quite small and compact then. By that time, Mother would come to the top of the Salon [Point 4]. Mother's room on the second floor was not yet there. It was built later, in 1953. She used to come right up to the edge [of the terrace of the Salon]. She stood there with Chinmayi holding the umbrella over her. And then, again, she walked down the length of the room to come to the landing there [Point 2]. She would again look around, and start coming down. Come down; come there again [Point 1]. And go in [the Salon].

An Interview with a Sadhika 37

1. The timing seems to have varied during different periods. Rakhal Bose reports the same Terrace Walk (Darshan) of the Mother at "about 11 a.m." in 1944. Similarly, there are varying reports of the route followed by the Mother during her Terrace Walk.

2. The staircase, at that time, didn't start from the south of the Salon, but from the terrace of Madhav Pandit's office.


Page 148


The%20Story%20of%20The%20Ashram%20Main%20Building%20-%200154-1.jpg

Page 149

The%20Story%20of%20The%20Ashram%20Main%20Building%20-%200155-1.jpg

The terrace south of the Salon where the Mother used to come and stand before going to the second fl oor for her walk


Page 150

The%20Story%20of%20The%20Ashram%20Main%20Building%20-%200156-1.jpg

Disciples in the Ashram courtyard waiting to see the Mother during her terrace walk

View from north-west

Page 151

The%20Story%20of%20The%20Ashram%20Main%20Building%20-%200157-1.jpg

Page 152

The%20Story%20of%20The%20Ashram%20Main%20Building%20-%200158-1.jpg

Page 153

Symbolic Names



Symbolic Names of Rooms in the Ashram Main Building

The symbolic names of rooms in the Ashram main building seem to have been given by the Mother during the years 1928-1932. The period when the names were given can be determined by the change of function of the room called "Communion with the Divine". This room was used by the Mother to distribute soup to the disciples from 1928 to 1931. It became the Reception Room in 1932, after the Mother fell ill in October 1931 and the soup distribution was stopped. The names given to the rooms on the first floor of the New Secretariat - "La Reserve" (Green Room or the Mother's Boudoir) and "Occultism" (Pavitra's bedroom) - provide another clue to the dating as these rooms were completed in 1932.

The symbolic names were related to the functions of the rooms. For example, the Darshan Room was named "Divine Consciousness", and the adjacent hall where the Mother meditated with the disciples was called "Purified Worship". Dr Rajangam's dispensary in the Library House was "Power of Healing" and the room where Champaklal worked was "Orderly Work". Other names were indicative of the persons who occupied the rooms. Sri Aurobindo's room was named "Supreme Manifestation upon earth", while Nolini's study room was "Pure Mind", Amrita's room "Vital Immortality" and Purani's room "Agni".

The names were commonly used in the early thirties. Mrityunjoy, the sadhak then in charge of the Electricity Service, wrote on 21 November 1931 in his report to the Mother, "Library House Silence verandah - bulb fused." Chandulal, head of the Building Service, likewise mentioned the need to repair "the roof above Occultism" in his report of 7 July 1932.

Editor's Note


Page 157


Ashram Main Building - First Floor

The Story of The Ashram Main Building - 0161-1.jpg

Page 158


Ashram Main Building - Ground Floor

The Story of The Ashram Main Building - 0162-1.jpg

Page 159


Occupants of the Library House - First Floor

When I first came here in April 1921, Sri Aurobindo was living in the Guest House. When I came for good in June 1923, both Sri Aurobindo and the Mother were living in Library House. Sri Aurobindo used to see people in the morning in the verandah upstairs. At that time it was an open verandah, covered on three sides (east, west and south) with big curtains;1 the windows you now see on these sides were put in much later. The hall to its north, where Mother distributed Prosperity blessings, was then her Stores. The room to the north of this hall was Mother's room (it was later to be my room). The corner room (to the east of the hall) was Sri Aurobindo's. The room to the left, on the top of the staircase, was Datta's (later Rajangam's).


Champaklal 38


1. See Mother's account of expenses for moving to the Library House on page 10, where the fourth item is "blinds (verandah) - Rs. 13".


Page 160


The Story of The Ashram Main Building - 0164-1.jpg

Page 161


Occupants of the Library House - Ground Floor

Now regarding the rooms on the ground floor of this house: the room which is at present the office of the Reception Service (where photographs are sold) was Moni's. He had a humorous and happy disposition and his poems reflect this nature. When he left, that room was given to me. The present Reception Hall was Nolini's room and the present reading room was Amrita's. What is now the Publication Department display and sales room was Bijoy's and its office under the terrace leading to Ravindra's rooms in the back courtyard was Barin's room.

When Sri Aurobindo came down to the dining room (the present fruit distribution room) to have his food, he came down the Prosperity stairs, passed through Nolini's room, Bijoy's room and then entered the dining room. (This dining room was only for the inmates of Library House; the inmates of Guest House, where I stayed in the room that Mother had lived in, had a separate dining room.) It is specially interesting to me that everybody receives fruits from the very room where once Sri Aurobindo had his meals.


Champaklal 39


Page 162


Sri Aurobindo's Path to the Dining Room

10. Garage


Page 163


Sri Aurobindo's Lunch


Pavitra kept all his tools in his room, which was no larger than the one he had occupied in Rosary House. Evidently its builder had no premonition of its tall new dweller! But however inconvenient, the dweller didn't mind. He had been trained well and had the capacity to adjust to any circumstance. In that little room, the cot occupied almost half the space. Then there was a huge almirah, a shabby deal-wood almirah, and a few boxes that had accompanied him to Japan, Mongolia and China, and are even now lying in his room. These wonderful artefacts covered almost the whole floor. One could somehow manage to negotiate the room through the narrow passage that was left. And through it the Mother passed daily at least twice, in the afternoon and evening. The cot itself, with its mattress rolled back to one side, served as a spacious table, suitable for all purposes. There was also a chair and a small table which Pavitra used for preparing salads for Sri Aurobindo and the Mother. He could make a variety of salads - true French salads. Simply to watch him at work was to learn a chapter of human life. What a clean and orderly arrangement of every detail: the utensils in position, the water in the bowls, the knives and forks and spoons, the apron and towels, the salt and pepper, vinegar and oil, and then the vegetables, some boiled, some raw, some soaked in salt since the day before, and lastly the washing place with a big jug of water - all set up as if in a scientist's laboratory! Pavitra's swiftness, clarity and neatness on the job was a picture. And as he worked, still he could talk to a young disciple sitting on the window-sill!

At any moment the Mother will come. He has to hurry up. The time is 1:00 p.m. Yes, here is the Mother, surprised to see a novice here at this hour, but, all gracious, she allows him to remain. It is time to go. Crossing the terrace, Pavitra accompanies the Mother through her bathroom door, carrying four or five bowls, one above the other, covered with saucers; they contain Sri Aurobindo's lunch.

Mrityunjoy Mukherjee 40


The reader might wonder why Sri Aurobindo's lunch had to be carried through the "bathroom door", but this door provided a connection between the Meditation House and the Old Secretariat. Sri Aurobindo and the Mother's bathroom on the first floor of the Meditation House was adjacent to the terrace of the Old Secretariat where Pavitra stayed. It was thus convenient to add a door on the west wall of the bathroom and link it to the terrace of the Old Secretariat in order to have direct access from one house to the other. Incidentally, Sri Aurobindo's bathroom already had (and even now has) two other doors, one to the east opening into his own room, and one to the south opening in front of the staircase landing. When the New Secretariat was built in 1932, the door to the west was connected to the corridor leading to Pavitra's new room on the first floor of the New Secretariat. See the drawings on pages 168-169 for a more graphic representation.

The drawing on the opposite page shows the courtyard of the Old Secretariat with the present location of the Samadhi. The building on the right is the Old Secretariat which was demolished in 1931. The structure on the left is the kitchen in the Rosary House demolished in 1942. The passage of the Mother as described in Mrityunjoy's story is drawn in red.

Editor's Note


Page 164


Passage for carrying Sri Aurobindo's Lunch

Inside view facing east, 1929

The Story of The Ashram Main Building - 0168-1.jpg

Page 165


The Mother's Passage to the Prosperity Stores in 1929


By [1929], the small old houses on the plot adjoining Library House were being bought. They have all been demolished now to make the big courtyards of the Ashram. Pavitra was shifted to one of them, a little two-storeyed house in the centre of the small courtyard near the Mother's first room in Meditation House. Pavitra's house had only one small room upstairs, with a door facing an open terrace that led to the Mother's bathroom. Crossing that terrace, the Mother would come to Pavitra's room. When she went down to the car for her afternoon drive, or in the evening when she went to the Prosperity room, she would always pass through Pavitra's room. Descending his staircase, she would walk a few steps across the courtyard, go up the staircase at the foot of the present Samadhi, and pass through Champaklal's or Anilbaran's room in order to enter "Prosperity"; there she spent a while looking into the accounts of the daily expenditure for the garden, kitchen, general stores, and so on. During all these activities, Pavitra followed her like a shadow.

Mrityunjoy Mukherjee 41


Many interconnections were made for the Mother to move freely through the four houses of the Ashram main building. Apart from the bathroom door linking the Meditation House with the Old Secretariat, a small link-staircase "at the foot of the present Samadhi" gave her access to the Library House from the courtyard of the Old Secretariat. The original staircase of the Library House leading to Champaklal's room on the first floor started only from the south, that is, from the courtyard in front of the present Notice Board verandah. The covered passage (Item 11 on page 168) was another connection between the Library House and the Rosary House through which the Mother came back to the Meditation House in the evening after distributing soup to the sadhaks.

Editor's Note

Page 166


The Mother's Passage to the Prosperity Stores in 1932

When the Secretariat was rebuilt in 1932, the Mother did not have to climb up and down the two staircases to go to the Prosperity Stores in the Library House. She could now simply walk through the corridor connecting the Meditation House with the New Secretariat, go through Pavitra's room, cross Champaklal's terrace and enter either Anilbaran or Champaklal's room to reach the Prosperity Stores on the first floor of the Library House.

Editor's Note


The corresponding drawings of these two pages describing the Mother's passage in the Ashram main building before and after the construction of the New Secretariat are on the next two pages.

Page 167


The Story of The Ashram Main Building - 0171-1.jpg

Page 168


The Mother's Passage to the Prosperity Stores in 1932

The Story of The Ashram Main Building - 0172-1.jpg

Page 169


First Floor of the Meditation House

Rooms and their Significances

A. Sri Aurobindo's Room (Supreme Manifestation upon Earth)

B. Central Hall (Perfect Creation)

C. Meditation Hall upstairs (Purified Worship)

D. Darshan Room (Divine Consciousness)

E. The Mother's Dressing Room (Divine's Love)

F. Sri Aurobindo and the Mother's Sitting Room (Krishna's Ananda)



Furniture used by Sri Aurobindo and the Mother

1. Sri Aurobindo's chair (November 1946 -1950)

2. Sri Aurobindo's bed (November 1946 -1950)

3. Chair used by Sri Aurobindo for writing (1940's)

4. The Mother's Darshan chair (1951-1962)

5. Sri Aurobindo and the Mother's Darshan seat (1927-1928) Also used by the Mother for collective meditation (1927-1928)

6. Sri Aurobindo and the Mother's Darshan seat (1928-1950)

Page 170


The Story of The Ashram Main Building - 0174-1.jpg

Page 171


Ground Floor of the Meditation House and First Floor of the New Secretariat

Rooms and their Significances

A. Front verandah (Spiritual Aspiration)

B. Nolini's study (Pure Mind)

C. Nolini's bedroom (Transformation)

D. Amrita's room (Vital Immortality)

E. Meditation Hall downstairs (Matter consenting to be spiritualised)

F. Staircase leading to the first floor - first flight (Spiritual Ascension)

G. Staircase leading to the first floor - second flight (Spiritual Intensity)

H. The Mother's Salon on the first floor

I. Corridor leading to Pavitra's room and office

J. Green Room - The Mother's Dressing Room (La Reserve)


Furniture used by Sri Aurobindo and the Mother

1. Seat used by the Mother for Pranam (1931-1938)

2. The Mother's chair placed here on 29.2.1960 (first anniversary of the Supramental Manifestation)

3. The Mother's bed placed here after 17.11.1973

4. Chair used by the Mother for blessings (1944 - 1962)

5. The Mother's chair in the Salon

6. Sri Aurobindo's correspondence chair and table in the Salon (1930's)

7. The Mother's sofa in the Salon

8. The Mother's couch in the Salon

9. The Mother's chair in the corridor upstairs

10. The Mother's dressing table


Page 172


The Story of The Ashram Main Building - 0176-1.jpg

Page 173

References to Texts

CWM: Collected Works of the Mother
SAAA: Sri Aurobindo Ashram Archives

1 (p. 2) Sahana Devi, At the Feet of the Mother and Sri Aurobindo, pp. 4-5
2 (p. 4) Ramakant Navelkar, Sri Aurobindo Ashram Drawing Office
3 (p. 6) Barin Ghose, Documents in SAAA
4 (p. 7) Abdoul Aziz Khan, Documents in SAAA
5 (p. 7) Abdoul Aziz Khan, Documents in SAAA
6 (p. 10) Barin Ghose, Amrita, Baisakh 1341 (April/May 1936)
7 (p. 10) The Mother, Documents in SAAA
8 (p. 12) Carounamballe Françis, Documents in SAAA
9 (p. 20) Barin Ghose, Documents in SAAA
10 (p. 21) The Mother, CWM, Volume 16, p. 3
11 (p. 21) Barin Ghose, Documents in SAAA
12 (p. 21) Sri Aurobindo, Documents in SAAA
13 (p. 24) Haradhan Bakshi, Documents in SAAA
14 (p. 24) Champaklal, Champaklal Speaks (2002), p. 75
15 (p.25) TheMother,CWM,Volume16,p.3
16 (p. 25) Punamchand, Documents in SAAA
17 (p. 50) Ramakant Navelkar, Sri Aurobindo Ashram Drawing Office
18 (p. 77) Sahana Devi, Breath of Grace (1973), p. 108
19 (p. 78) An Interview with Nagin Doshi, Documents in SAAA
20 (p. 96) An Interview with Dyuman, Documents in SAAA
21 (p. 100) An Interview with Dyuman, Documents in SAAA
22 (p. 104) Dyuman, Mother India, January 1989, p. 29. Text emended.
23 (p. 104) An Interview with Dyuman, Documents in SAAA
24 (p. 104) Dyuman, Mother India, January 1989, p. 32. Text emended and collated.
25 (p. 104) An Interview with Dyuman, Documents in SAAA
26 (p. 110) Prabhat Sanyal, A Call from Pondicherry, Mother India, December 1953, p. 187
27 (p. 110) Nirodbaran, Twelve Years with Sri Aurobindo (2000), p. 280
28 (p. 111) An Interview with Vishwanath Lahiri, Documents in SAAA


Page 175

29 (pp. 112-113) Udar Pinto, Sri Aurobindo’s Action, July 1992, pp. 6-7
30 (p. 120) Ranadhir Upadhyay, Translated from Dyuman ni Dyuti, pp.113-14
31 (p. 121) Srinivas Iyengar, On the Mother (1994), p. 568
32 (p. 121) Champaklal, Champaklal Speaks (2002), p 224
33 (p. 126) An Interview with Vishwanath Lahiri, Documents in SAAA
34 (p. 128) Udar Pinto, Mother India, April 1978, pp. 261-62
35 (p. 132) Srinivas Iyengar, On The Mother (1994), p. 708
36 (pp. 140-41) Shreekrishna Prasad, Mother India, August 1956, pp. 29-30
37 (p. 148) An Interview with a Sadhika, Documents in SAAA
38 (p. 160) Champaklal, Champaklal Speaks (2002), p. 41
39 (p. 162) Champaklal, Champaklal Speaks (2002), p. 42
40 (p. 164) Mrityunjoy Mukherjee, Glimpses of Pavitra, Mother India, January 1989, 44
41 (p. 166) Mrityunjoy Mukherjee, Glimpses of Pavitra, Mother India, December 1988, p. 815



Page 176

Indexes

Please refer to the PDF version for the following indexes:

- Subject Index
- Index of Photographs

Index of Drawings

The Mother

Self-sketch by the Mother dated 4.3.1948

Jayantilal Parekh

temporary and permanent supports of the Service Tree...106-107

Sammer, Francois

design of the pergola to support the Service Tree …105

Ashram Main Building

Plans

ground & first floor plans of Old Secretariat in 1929 .... 29 reconstructed ground floor plan in 1929 …30-31

ground floor plan in 1931 …28

ground floor plan in 1932 with symbolic names of rooms…159

first floor plan in 1932 with symbolic names of rooms…158

plan of the pergola in 1942 .. 108

Perspectives

from south-east in 1929 .... 32-33, 53

from south-east in 1947 …54

from south-east in 2000 …55

from north-west in 1929 .... 34-35, 61

from north-west in 1930…62

from north-west in June 1931…63

from north-west in 1932…64

from north-west in 1935…65

view of the central courtyard of in 1929 showing the present location

of the Samadhi.... 102

inside view facing east in 1929, showing the Mothers passage

for carrying Sri Aurobindo’s lunch .... 167

Elevations

north elevation, 1929-2005 .... 56-57

south elevation, 1929-2005 .... 58

west elevation, 1929-2005 .... 59

east elevation, 1929-2005 .... 60

Isometric Views

part open Isometric View showing first floor occupancy

of Library House in 1923 .... 161

part open Isometric View showing ground floor occupancy of Library

House and Sri Aurobindo’s passage to the dining room in 1923 .... 163

part open Isometric view showing the Mother’s passage through

the Old Secretariat in 1929 .... 168

part open Isometric view showing the Mother’s passage through

the New Secretariat in 1932 .... 169

part open Isometric View showing the route of the Mother’s terrace walk in 1940’s.... 149

open Isometric View of the first floor of Meditation House showing rooms & furniture used by Sri Aurobindo and the Mother .... 170-171

open Isometric View of ground and first floor of Meditation House and New Secretariat showing rooms and furniture used by Sri Aurobindo and the Mother.... 172-173




Index of Names

Abdoul Aziz Khan 6-7

Abhay Singh 50, 52, 58, 60

Ambu 96,104

Amrita 10,21, 25,157,159,162-163,172-173

Andre Morisset 21,25,51

Anilbaran Roy 21,158,166-169

Barin Ghose 6,10,12,20-21,25,162-163

Bijoy Nag 162-163

Bushy, the cat 21

Carounamballe Francis 12

Champaklal 24,33,35,37,51,71,89, 101,121, 158, 160,162,166-169

Chandulal 25,28,30,51-52,77,81,85,157

Chinmayi 148

Dara 12,20

Datta 10, 158,160-161

David 25

Dikshit 25

Dilip Kumar Roy 52

Doraiswamy Iyer 25, 159

Dyuman 12, 30, 50-51, 78, 96, 100,104, 120-121, 128,148,157,159

Haradhan Bakshi 24

Harikant Patel 12

Hindocha 47

Iyengar, Srinivas 121, 132

Indexes and References 183

Jayant Patel 111

Jayantilal Parekh 106-107

Jwalanti 148

Kamalaben 43, 148

Kanai Ganguly 12

Kaplan, H.P. 112

M.P Pandit 43, 148

Manubhai 96, 104

Mary (Udar’s aunt) 128

Moni 162-163

Mrityunjoy Mukherjee 78, 157, 164, 166

Mysore, Maharaja of 128

Nagin Doshi 52, 78

Nakashima 104

Navajat 52, 58, 120

Nirodbaran 50-51, 81, 110

Nishtha 148

Nolini Kanto Gupta 21, 25, 157, 159, 162-163, 172-173

Panou 111

Parichand 104

Pavitra 12, 16, 25, 40-41, 50-51, 72-78, 80, 82, 111, 128, 148, 157-158, 161, 164-169

Potel 25

Prafull 51

Pujalal 12

Punamchand 25

Purani 159

Purushottam 52, 159

Radhanand 51

Raghava Chettiar 21

Rajangam 159-160

Rajani Palit 21

Rakhal Bose 148

Ranadhir Upadhyaya 120

Ravindra 52, 59, 162

Raymond 104

Rene 12

Sahana 2, 52,77

Sammer 104-105

Sanyal, Prabhat 110, 112

Satyen 159

Shreekrishna Prasad 140-141

Soli Albless 121, 126

Subramaniam 25

Udar Pinto 100, 111-113, 126, 128

Umirchand 126

Vishwanath Lahiri 111, 126

Xavier, Saint Francis 112



Index of Departments

Accounts Office 68-69

Andre’s Office 51

Atelier 51

Banana garden 31-37,46-47, 70-71, 74-75,163

Building Service 52, 68-71, 83-85, 100-102,126, 157

Bulletin Office 50-52

Cold Storage 51-52,57, 59, 90-94

Cow shed 31,38-39

Cycle House 88-89

Dining Room

in Library House (1922-27) 160-161

in Library House (1929-34) 31-35,51-52,59,88-89,159

in Rosary House 12

Dispensary 159

Drawing Office 17,33,40-41,46-47, 80, 126

Electric Service 78, 126,157

Embroidery Dept 32-33

Fruit room 52,57, 59, 92-94,162-163

Garages 31-35, 38-39,46-47, 51, 59, 163

Gardening 96,104

Golconde 92-93,122-123

Guest House 160,162

Grace 33,69

Kitchen

in Aroume 52

in Library House 31-39

in Rosary House 17, 31-35, 40, 42-43, 52, 79-82, 102-104, 106, 164-165, 168-169

Champaklal’s kitchen 33,35,71,89

Library 159

Milking place 31

Notice board verandah 32-33,36-37,42-43, 50-51, 72-73,166

Prosperity office 51-52,57,87-89

Prosperity Stores 51,158,160-161,166-169

Publication Dept 162-163

Reading Room 159

Reception Hall 162-163

Reception Service 162-163

School 79

Soup Hall 159









Let us co-create the website.

Share your feedback. Help us improve. Or ask a question.

Image Description
Connect for updates